Ático en venta en Calle del Gral. Zabala

Madrid, Chamartín
670.000 €
72 m2 72 m2
2 baños 2 baños

Ático en venta en Calle del Gral. Zabala

Madrid, Chamartín

Descripción anuncio

Agencia inmobiliaria TECNOCASA de MADRID zona BARRIO PROSPERIDAD vende un esplendido Atico

Tecnocasa Clara del Rey 14 gestiona la venta de un exclusivo atico, ubicado a lado de Lopez de hoyos y la plaza de metro PROSPERIDAD

Ático Exclusivo en el Corazón de Madrid

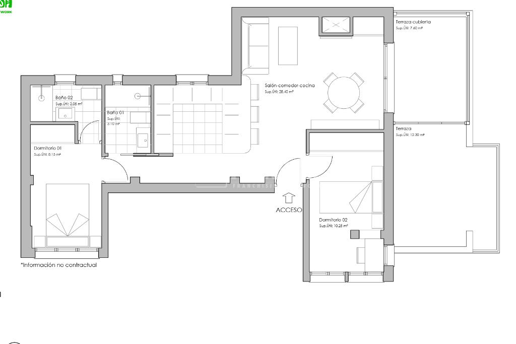
Descubre este espectacular ático ubicado junto a López de Hoyos y la plaza de metro Prosperidad. Este inmueble ha sido totalmente reformado, ofreciendo un diseño moderno y funcional que se adapta a tus necesidades. Cuenta con un amplio salón comedor que se abre a una terraza distribuida en dos zonas, ideal para disfrutar del sol y las vistas. La cocina de alta calidad está completamente equipada con electrodomésticos de última generación, perfecta para los amantes de la gastronomía.

El ático dispone de dos amplios dormitorios dobles, cada uno con armarios empotrados que garantizan un excelente almacenamiento. Los dos baños, uno de ellos en suite, están diseñados con acabados de calidad. Además, el aire acondicionado frío/calor asegura el confort en cualquier época del año. Las ventanas Climalit de PVC con ruptura térmica ofrecen un aislamiento acústico y térmico excepcional.

Ubicado en el centro de Madrid, este ático se encuentra rodeado de todo tipo de comercios, colegios, supermercados y farmacias, lo que facilita la vida diaria. La excelente comunicación mediante transporte público (metros: Prosperidad L4, Cartagena L7, Avenida América L4, L6, L7, L9) te permitirá moverte por la ciudad con facilidad. No pierdas la oportunidad de vivir en este exclusivo ático, donde el confort y la ubicación se unen para ofrecerte una calidad de vida inigualable. ¡Contacta ahora para más información!

TECNOCASA pone a su disposición su departamento financiero KÍRON, primera red de intermediación financiera líder en España, para ofrecerle un asesoramiento totalmente gratuito y sin compromiso. No dude en avisarnos para concertar una cita a la hora de realizar su visita al inmueble.

Ver más

Características

Ref.:
647283
Planta:
Alta
Aire acondicionado:
Independiente (Frío / Calor)
Ascensor:
Calefacción:
centralizada
Tipo de inmueble:
Popular
Ver más
Precio Precio
670.000 €
Cuota mensual Cuota mensual
€ 2.303 / mes

Clase energética

E
E
E
E
E
E
E
E
E
Consumo de energia:
252 kW h/m² año
Emisiones:
50 Kg CO2/m² año
Registro:
10/213817.9/26
Válida hasta:
25/02/2036
Año de construcción:
1970

Servicios cercanos

Transporte público Transporte público
Prosperidad
Prosperidad
130 m
Cruz del Rayo
Cruz del Rayo
390 m
Nuevos Ministerios
Nuevos Ministerios
1,5 Km
Recoletos
Recoletos
2,7 Km
Cartagena - López de Hoyos
Cartagena - López de Hoyos
100 m
Colegios Colegios
Antigua Escuela de Música Salan
70 m
Colegio Público Luis Bello
130 m
Escuela Popular de Prosperidad
150 m
Acaya
210 m
Colegio Corazón Inmaculado
230 m
Farmacias Farmacias
Farmacia - Calle Cartagena 121
130 m
Farmacia - Calle Constancia 35
170 m
Farmacia - Calle López de Hoyos 83
210 m
Farmacia - Calle Luis Vives 14
220 m
Farmacia - Calle Anastasio Aroca 4
230 m
Hospitales Hospitales
Quirón San José
270 m
Asepeyo
720 m
Hospital San Francisco de Asís
790 m
Hospital Universitario de la Princesa
970 m
Instituto Provincial de Rehabilitación
1,1 Km
Supermercados Supermercados
Dia
150 m
Lidl
170 m
Ahorramás
190 m
El Sabroso
190 m
Condis
270 m
Tiendas Tiendas
Ultramarinos - bazar chino
40 m
Casa Joven
120 m
Tiendas
120 m
Pastelería Reyes
150 m
Martín Martín
260 m
Bar Bar
Casa Vicenta
300 m
Antiguo bar La flor
350 m
Moarán
370 m
La Pinta Avenida
370 m
La Ópera Flotante
400 m
restaurantes restaurantes
Tampu
190 m
Panxon
210 m
Vila Brasil
250 m
El Pinchito
260 m
Rias Bajas
280 m
Ver más

Calcula tu hipoteca

Simple y sin compromiso
Entrada
%
al mes
Hipoteca
%
El resultado de esta simulación es orientativo. Los datos indicados no corresponden a condiciones reales de productos y no implican compromiso, obligación o vínculo jurídico-legal para el Grupo Tecnocasa.

Solicita un asesoramiento

Introduce tus datos
GRACIAS POR CONTACTAR CON NOSOTROS.
Esta oficina de Kìron se pondrá en contacto contigo lo antes posible para ofrecerte un asesoramiento financiero más completo y acorde a la información que nos has facilitado.
Franquiciado
Consulting Prosperidad 2015 Slu
Calle Clara del Rey, 14 28002 Madrid (M)
Calle Clara del Rey, 14 28002 Madrid (M) Zona: BARRIO PROSPERIDAD
LUNES A VIERNES DE 9:30/14:00 Y DE 17:00/21:00. SABADOS DE 10:00/14:00 Y DE 17:00/20:00. DOMINGOS PREVIA CITA.

Nuestro equipo


  • Gianluca Leone
    Franquiciado

  • Ainhoa Elena
    Colaborador

  • Sergio Seco
    Colaborador

  • Rafael Sanmartín
    Colaborador
Franquiciado
Consulting Prosperidad 2015 Slu
Calle Clara del Rey, 14 28002 Madrid (M)

Franquiciado
Consulting Prosperidad 2015 Slu
Franquiciado
Consulting Prosperidad 2015 Slu

2026 Ibero Group Tecnocasa Services, S.L.U. - CIF B-65870776 - C/ Pallars, nº 1-3 Parque de Negocios Mas Blau II, 08820, El Prat de Llobregat (Barcelona-España). Red en franquicia - Cada sociedad franquiciada tiene su propio titular y es independiente del franquiciador.

Política de privacidad | Aviso legal | Pólitica de las Cookies | Información al consumidor | | Canal ético